Die Nibelungenhalle in Lorsch
Die Nibelungenhalle ist ein wichtiger kultureller Baustein der Innenstadt. Die bauliche Struktur aus den 60er Jahren ist allerdings dringend sanierungsbedürftig. Im Rahmen eines Gutachterverfahrens wurde die Sanierung der Halle mit einer Neubaulösung verglichen. Es konnte gezeigt werden, dass ein Abriss wertvolle Ressourcen verschwenden würde und eine Sanierungs- und Erweiterungslösung sinnvoller als ein Neubau umgesetzt werden kann.
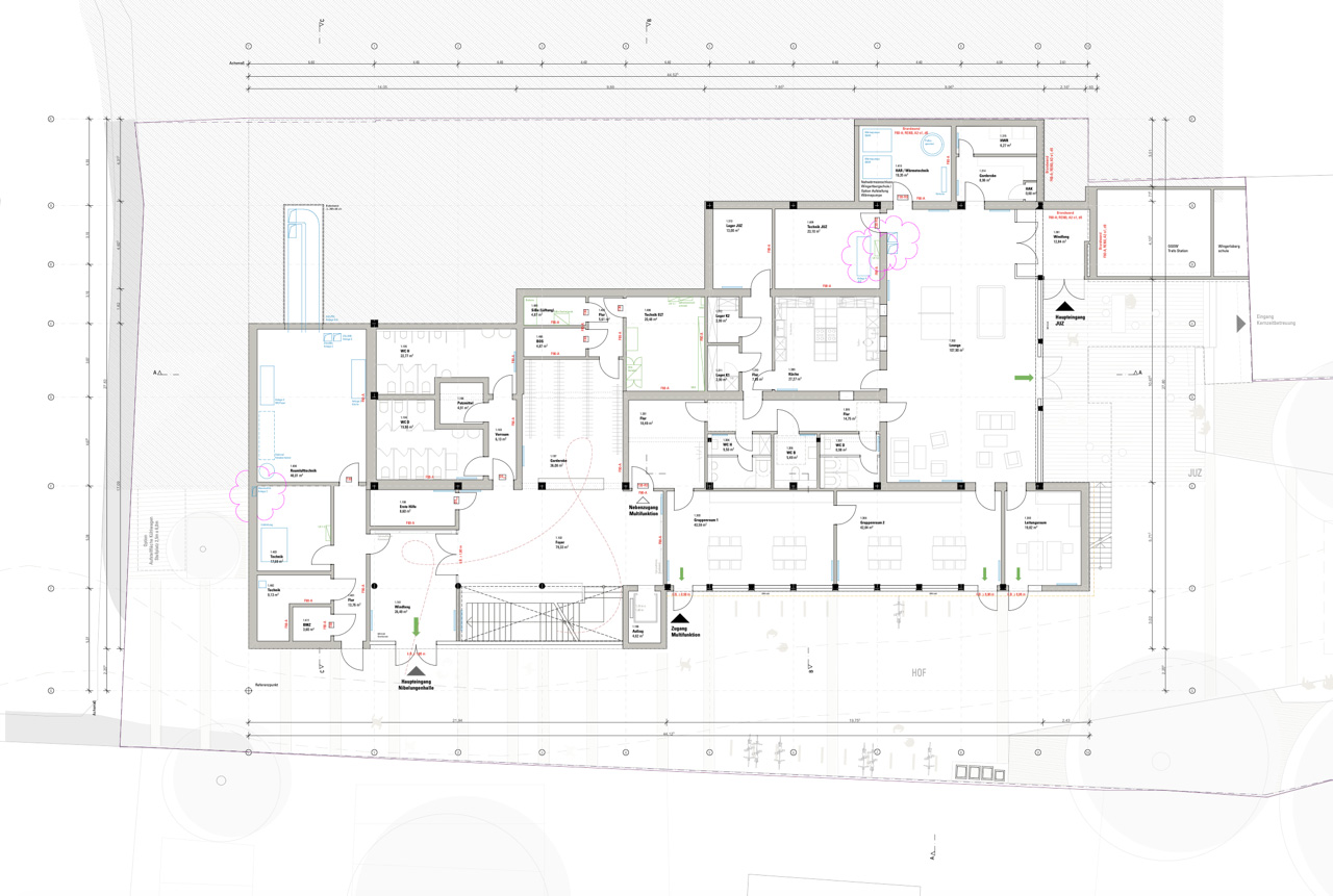
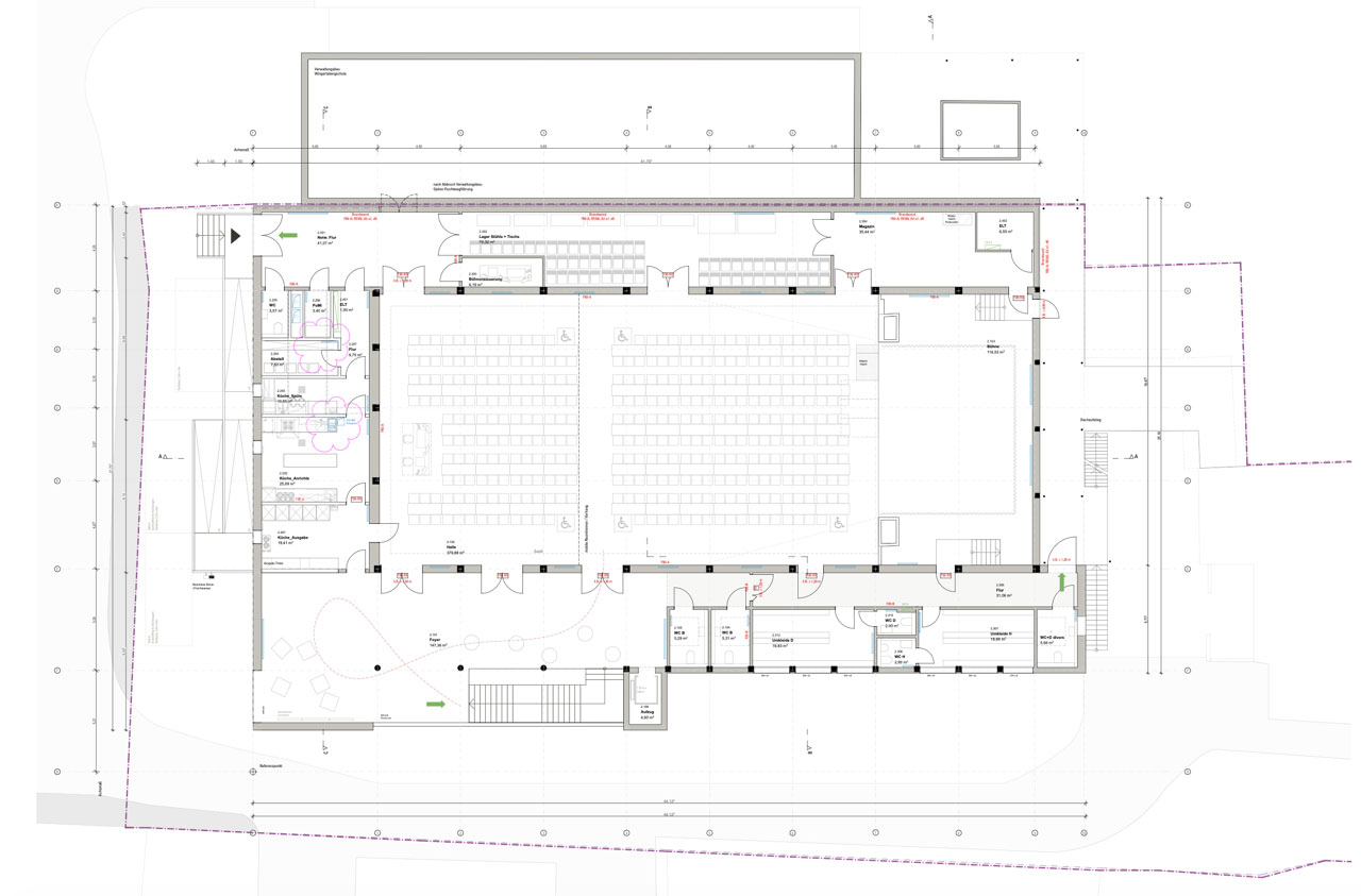
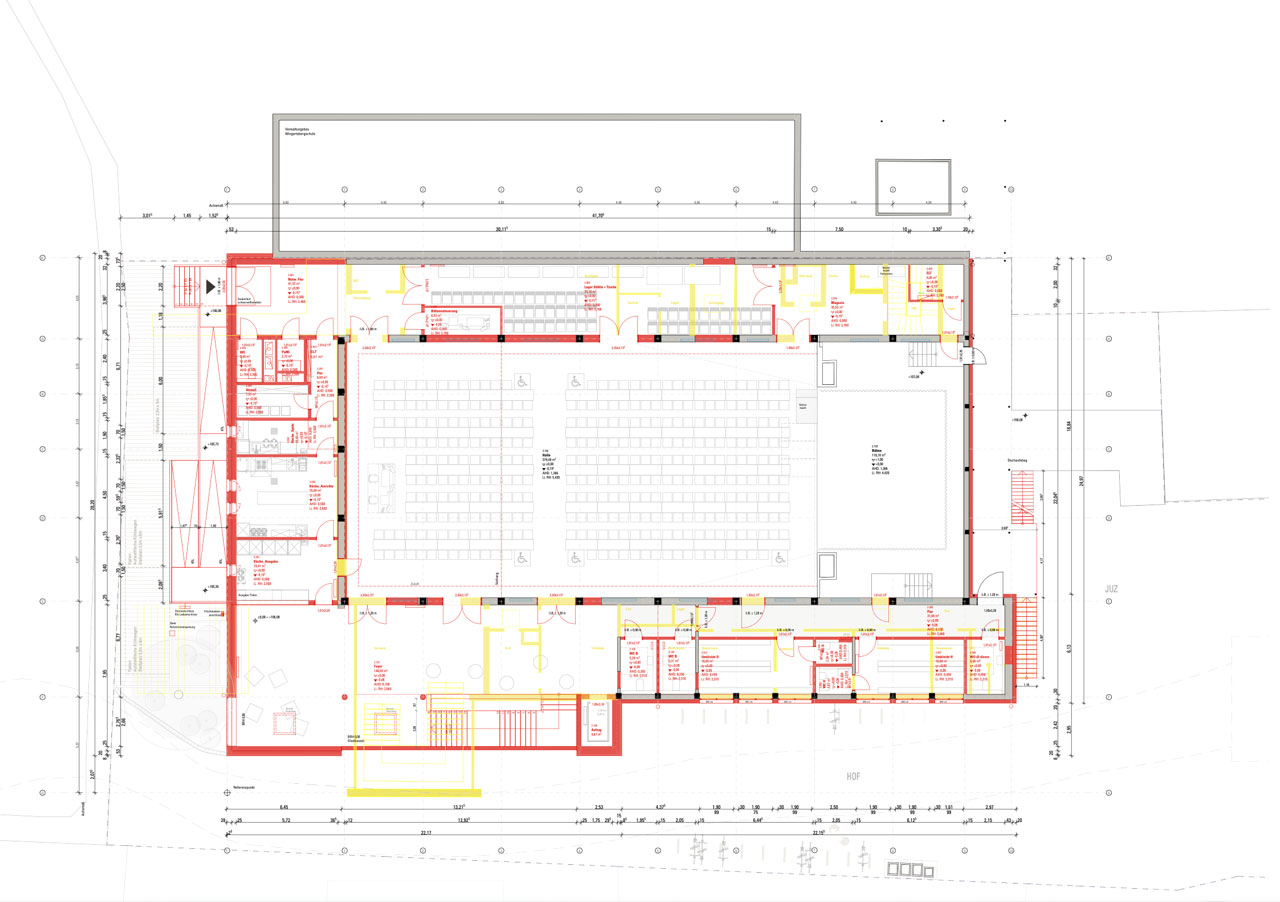
Die Maßnahme erweitert die Eingangs- und Cateringbereiche, und schafft Räume für ein Jugendzentrum im unteren Geschoss. Die Halle wird durchgehend barrierefrei und thermisch auf aktuellen Stand gebracht um den Gebäudebetrieb energetisch zu optimieren. Die wertvolle Bausubstanz kann genutzt werden um zusätzliche Emissionen zu reduzieren.
Das Projekt ist eine Kooperation von prosa mit grüningerarchitekten aus Darmstadt




